Top City Office: Klar, effektiv & ideal gelegen

Immobilienart:
Bezirk:

272 m2

Kaltmiete 5.991 € pro Monat

22 € Euro /m² kalt

Die Fläche befindet sich in einem attraktiven Büroensemble, Seitenstraße nahe Gendarmenmarkt, im 1. OG. Über ein schönes Foyer gelangt man in die klassisch und effektiv geschnittenen Räume. Dank großzügigen Fensterfronten zu beiden Seiten des Gebäudes hat die Fläche eine großzügige und helle Ausstrahlung.

Zur Ausstattung gehören alle zeitgemäßen Merkmale wie IT-Verkabelung, Aufzug, Teeküche, Sonnenschutz etc.

Die Raumaufteilung kann selbstverständlich angepasst werden (Aufpreis zur angegebenen Mindestmiete).

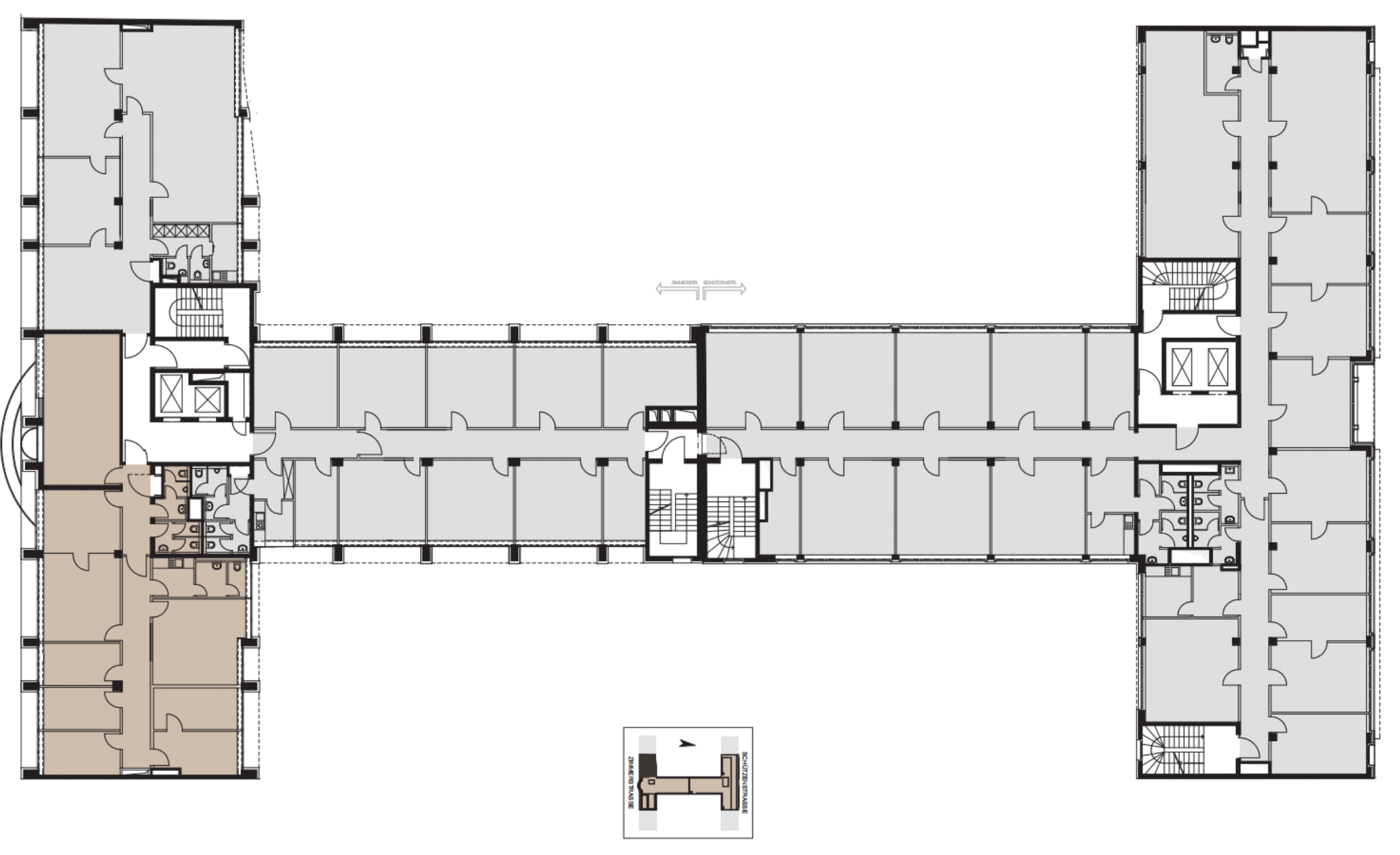
Grundrisse

Grundriss Regelgeschoss 1. OG /angebotene Fläche ist markiert
Endenergiebedarf kWh/(m²·a): 54,7
Energieeffizienzklasse: B
A+
A
54,7 kWh/m²a Energieeffizienzklasse B
B
C
D
E
F
G
H
Energieausweistyp:

Bedarfsausweis

Gültig bis:

 2031-02-25

Gebäudeart:

Nicht-Wohngebäude

Baujahr lt. Energieausweis

1999

Primärenergieträger:

Fernwärme

Compare Listings

Oliver Schmachtenberg